Tính năng Bàn cầu TOTO CS326DW16 nắp rửa điện tử WASHLET TCF23410AAA:
• Men sứ chống dính, chống bám bẩn CEFIONTECT
• Hệ thống xả Tornado siêu mạnh, siêu êm, tiết kiệm nước
• Nắp đóng/ mở tự động
• Công nghệ nước điện phân khử khuẩn Ewater+ (vệ sinh vòi rửa)
• Vòi rửa massage đa chức năng, rửa sạch, êm ái
• Tự vệ sinh vòi rửa trước và sau khi sử dụng
• Sấy khô, khử mùi, sưởi ấm nắp ngồi
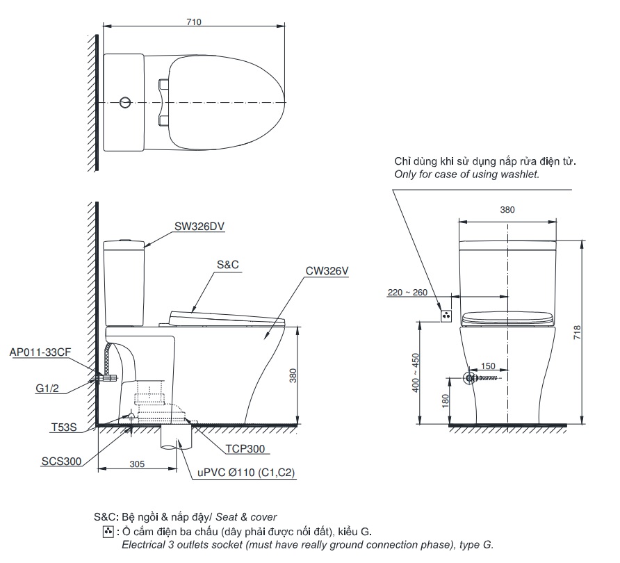
Thông số kỹ thuật Bàn cầu TOTO CS326DW16 nắp rửa điện tử WASHLET TCF23410AAA:






Đánh giá
Chưa có đánh giá nào.